Benutzer-Werkzeuge

Webseiten-Werkzeuge


de:infra-convert:user:functions:drwimport

Dies ist eine alte Version des Dokuments!


Benutzerhandbuch infra CONVERT > Funktionen > Zeichnungen

Zeichnung importieren


Mit dieser Funktion können Sie einem Prüfplan Zeichnungsblätter zuordnen.

Inhalt

 • Arbeitsablauf
 • Anpassung


Arbeitsablauf

Schritt Aktion Ergebnis
1 Funktion aufrufen Klicken Sie in der Projektübersicht neben dem (bereits angelegten) Prüfplan, welchem Sie die Zeichnung zuordnen wollen, auf die Schaltfläche Zeichnungsblatt hinzufügen . Es öffnet sich der Dateimanager des Betriebssystems.
2 Zeichnungsblätter auswählen Navigieren Sie zum Speicherort der Zeichnungsblätter und laden Sie diese (Verzeichniseintrag doppelklicken oder Eintrag oder mehrere Einträge auswählen und auf Öffnen klicken).

Hinweis IGES-Dateien können nur mit einer Lizenz für das Zusatzmodul „IGES“ geladen werden.
[A] Abhängig vom Dateiformat (*.dxf, *.dwg) und gesetzter Voreinstellung öffnet sich der Dialog „Zeichnungsblatt importieren“, andernfalls werden die Zeichnungsblätter wie unter C) beschrieben direkt hinzugefügt:


Anmerkung Die Funktion zur Auswahl von Modell- und Papierbereichen ist nur in der Pro-Version und erst ab Programmversion 1.4.0.5 verfügbar.
[B] Abhängig vom Dateiformat (*.pdf) und gesetzter Voreinstellung öffnet sich der Dialog „Zeichnungsblatt importieren“, andernfalls werden die Zeichnungsblätter wie unter C) beschrieben direkt hinzugefügt:


Anmerkung Die im Dialog angezeigte Option ist ab Programmversion 1.4.0.5 verfügbar
C) Die Zeichnungsblätter werden als Einträge im Fenster „Projektübersicht“ angezeigt:
[3a] [Optional]
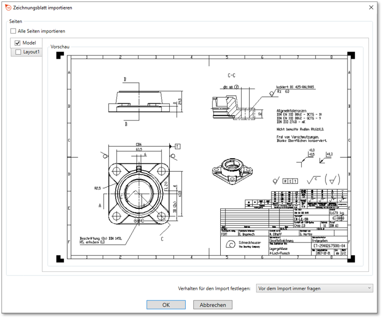
Blätter einer DXF oder DWG auswählen
Im Dialog „Zeichnungsblatt importieren“ können Sie die gewünschten Blätter aus dem Modellbereich und den Papierbereichen auswählen. Setzen Sie dazu auf den Tabs die ein Häkchen. Durch Klick auf einen Tab können Sie das Blatt in einer Vorschau ansehen. Das Verhalten für folgende Imports können Sie unten rechts im Dialog vorgeben. Die Zeichnungsblätter werden als Einträge im Fenster „Projektübersicht“ angezeigt:
[3b] [Optional]
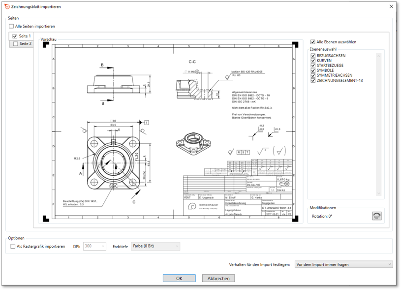
Blätter einer PDF auswählen
Im Dialog „Zeichnungsblatt importieren“ können Sie die gewünschten Blätter der PDF auswählen. Setzen Sie dazu auf den Tabs die ein Häkchen. Durch Klick auf einen Tab können Sie das Blatt in einer Vorschau ansehen. Im rechten Bereich „Ebenenauswahl“ können Sie zudem die gewünschten Ebenen auswählen. Das Verhalten für folgende Imports können Sie unten rechts im Dialog vorgeben. Die Zeichnungsblätter werden als Einträge im Fenster „Projektübersicht“ angezeigt.


Anpassung

Die Funktion können Sie über die folgenden Einstellungen beeinflussen:

Importverhalten festlegen

Ändern Sie das Importverhalten beim Laden von DXF- und DWG-Dateien sowie PDF-Dateien.
Siehe Einstellungen > Einstellungen > Import > Gruppe „Mehrseitige Zeichnungsdateien“


Zurückblättern
Funktionen > Prüfpläne > Alte ICP-Projektdateien löschen

Weiterblättern
Funktionen > Zeichnungen > Zeichnung löschen

de/infra-convert/user/functions/drwimport.1572342002.txt.gz · Zuletzt geändert: 2019/10/29 10:40 von me