Benutzer-Werkzeuge

Webseiten-Werkzeuge


de:infra-convert:user:interface:drwwindow

Dies ist eine alte Version des Dokuments!


Benutzerhandbuch infra CONVERT > Benutzeroberfläche

Zeichnungsfenster


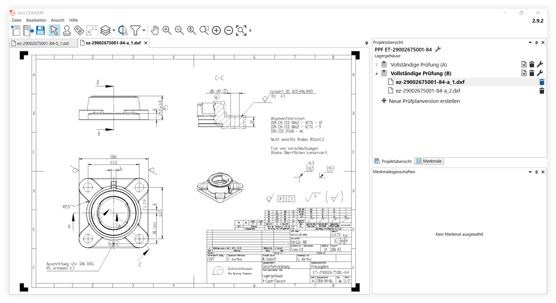
Zeichnungen werden aus dem Projekt Explorer heraus aufgerufen und im Zeichnungsfenster, hintereinander abgelegt in Form von →Tabs, dargestellt. Es können beliebig viele Zeichnungen gleichzeitig geöffnet sein:

Für Zeichnungsblätter im CAD-Datenformat DWG, DXF oder IGES (→Zeichnungsdatenformat) gibt es die Möglichkeit, die Farbdarstellung anzupassen. Die Hintergrundfarbe kann frei gewählt werden und die Elemente können farbig oder monochrom dargestellt werden (siehe Grundeinstellungen > Gruppe „Anzeige“). Ein weißer Hintergrund und monochrom (schwarz) dargestellte Linien ähneln der üblichen Zeichnungsdarstellung (siehe obige Abbildung). Eine farbige Darstellung, wie noch aus einigen CAD-Systemen bekannt, kann so aussehen:



Zurück zu
Benutzeroberfläche > Hauptfenster > Startfenster


Weiter mit
Benutzeroberfläche > Funktionsfenster > Projekt Explorer

de/infra-convert/user/interface/drwwindow.1491314229.txt.gz · Zuletzt geändert: 2017/04/04 15:57 von me