User Tools

Site Tools


en:infra-convert:user:functions:drwimport

This is an old revision of the document!


User manual infra CONVERT > Functions > Drawings

Import drawing


This function can be used to assign drawing sheets to a test plan.

Content

 • Workflow
 • Customization


Workflow

Step Action Result
1 Invoke function In the project overview, click on the Add drawing sheet button next to the (already created) test plan to which you want to assign the drawing . The file manager of your operating system opens.
2 Select the drawing sheets Navigate to the storage location of the drawing sheets and load these (Double-click directory entry or select entry or mulitple entries and click on Open).

Note IGES files can only be loaded with a license for the additional module “IGES”.
[A] Depending on the file format (*.dxf, *.dwg) and the default setting, the “Import drawing sheet” dialog opens, otherwise the drawing sheets are added directly as described under C):


Note The function for selecting model and paper spaces is only available in the Pro version and from program version 1.4.0.5 onwards.
[B] Depending on the file format (*.pdf) and the default setting, the “Import drawing sheet” dialog opens, otherwise the drawing sheets are added directly as described under C):


Note The option shown in the dialog is available as of program version 1.4.0.5.
C) The drawing sheets are displayed as entries in the “Project Overview” window:
[3a] [Optional]
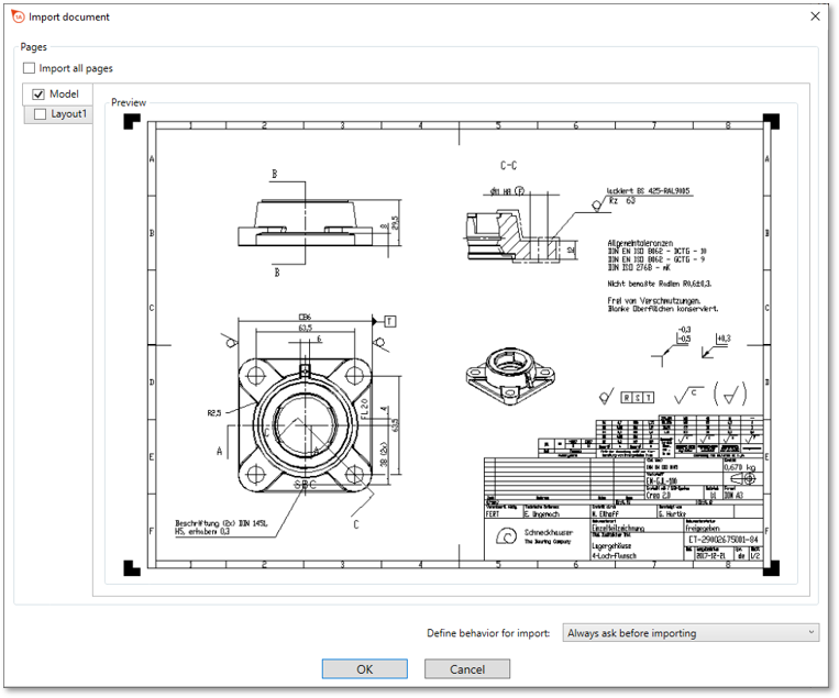
Selecting Sheets of a DXF or DWG
In the dialog “Import drawing sheet” you can select the desired sheets from the model space and the paper spaces. To do this, place a check mark on the tabs. By clicking on a tab you can preview the sheet. You can define the behavior for the following imports in the lower right corner of the dialog. The drawing sheets are displayed as entries in the “Project Overview” window:
[3b] [Optional]
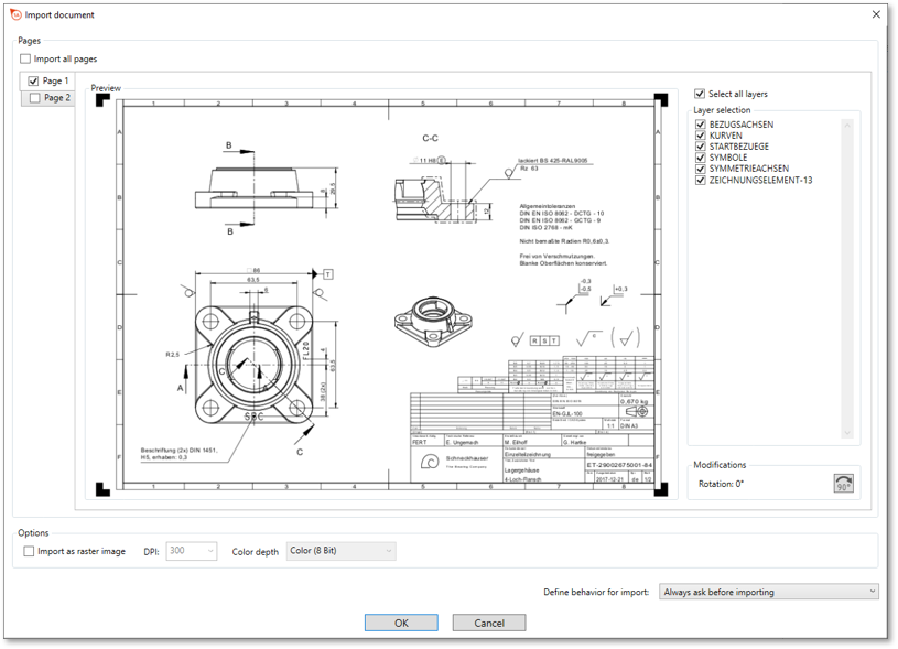
Select sheets of a PDF
In the dialog “Import drawing sheet” you can select the desired sheets of the PDF. To do this, place a check mark on the tabs. By clicking on a tab you can preview the sheet. In the right area “Layer selection” you can also select the desired layers. You can define the behavior for the following imports in the lower right corner of the dialog.

If you would like to convert the PDF into a raster graphic during import, you can set the check mark under “Options” at Import as Raster Graphic. You can also find the displayed setting options in the settings.

Note The import of a PDF as a raster graphic is only available from program version 1.4.2.1.
The drawing sheets are displayed as entries in the “Project Overview” window.


Customization

You can influence the function using the following settings:

Define import behavior

Change the import behavior when loading DXF, DWG, and PDF files.
See Settings > Settings > Import > “Multi-page drawing files” group


Go to previous page
Functions > Test plans > Load old ICP files

Go to next page
Functions > Drawings > Delete drawing

en/infra-convert/user/functions/drwimport.1579002747.txt.gz · Last modified: 2020/01/14 12:52 by me