User Tools

Site Tools


en:infra-convert:user:functions:ballooning_workflow
Schritt Aktion Ergebnis
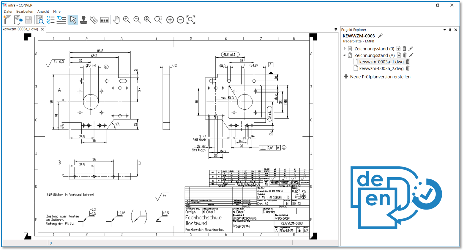
1 Zeichnungsblatt öffnen Öffnen Sie das Zeichnungsblatt, welches Sie stempeln möchten. Das Zeichnungsblatt wird im Zeichnungsfenster angezeigt:
2 Stempelwerkzeug aktivieren Klicken Sie in der Werkzeugleiste auf die Schalftfläche  Stempel-Werkzeug. Wenn Sie den Mauszeiger nun in das Zeichnungsfenster bewegen, wird dieser als Stempel () dargestellt.
3 Startwert für die Nummerierung prüfen/einstellen Dem ersten Merkmal im Prüfplan wird beim Stempeln die Nummer zugewiesen, welche in den Grundeinstellungen (siehe Anpassung > Grundeinstellungen > Stempel) als Startwert hinterlegt ist, üblicherweise “1”. Jeder weitere Stempel erhält eine um das eingestellte Inkrement hochgezählte Nummer. Sind bereits Merkmale im Prüfplan enthalten, wird der Zähler auf dem kleinstmöglichen Wert stehen.

Zum Prüfen oder Ändern des Zählerstandes öffnen Sie die Merkmalsübersicht, z. B. durch Klicken auf die Schaltfläche Merkmalsübersicht öffnen ( ) in der Werkzeugleiste.
Im Beispiel steht der Zähler für die Nummerierung wie gewünscht auf “1”:
4 Stempeln Für das eigentliche Stempeln stehen Ihnen drei alternative Teilfunktionen zur Verfügung:
4a) Ein Merkmal einzeln stempeln.
4b) Alle Merkmale in einem Bereich automatisch erkennen und stempeln lassen.
4c) Einen Zeichnungseintrag, welcher nicht als zusammenhängend erkannt wird, als ein Merkmal stempeln.
4a Einzelnes Merkmal stempeln Bewegen Sie den Mauszeiger () auf das Merkmal und klicken Sie mit der linken Maustaste (einfacher Klick). Im Beispiel haben wir uns für das Längenmaß 80 in der Vorderansicht entschieden. Nach dem Stempeln hat es einen VDA-Stempel mit der Nummer “1” erhalten und erscheint als Eintrag in der Merkmalsübersicht:
4b Bereich stempeln Bewegen Sie den Mauszeiger () auf die Zeichnungsfläche und selektieren Sie den gewünschten Bereich (siehe auch Benutzeroberfläche > Bedienung – Besonderheiten beim Auswählen und Selektieren). Im Beispiel haben wir uns dafür entschieden, alle Merkmale der Vorderansicht zu stempeln:
Nach dem Stempeln haben alle relevanten Merkmale des Bereichs einen VDA-Stempel mit Nummern von „1“ bis “13” erhalten und erscheinen als Eintrag in der Merkmalsübersicht:
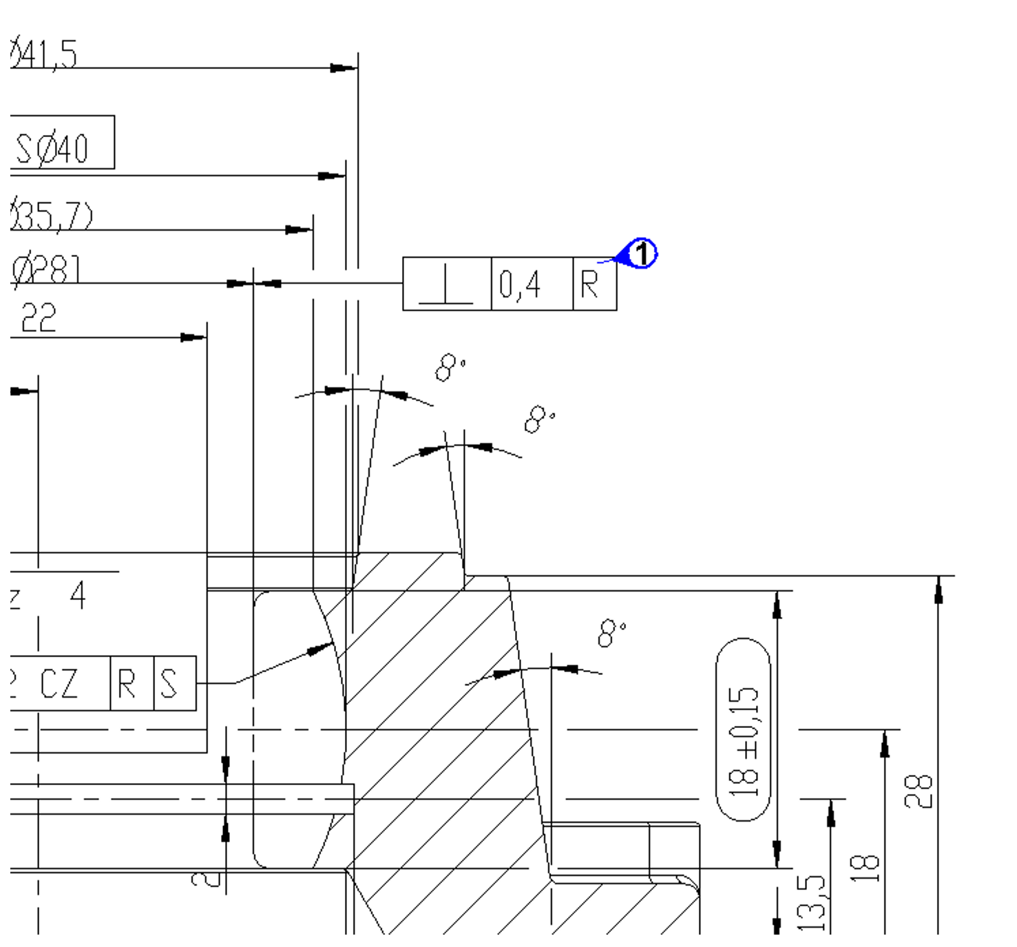
4c Gruppe stempeln 1) Bewegen Sie den Mauszeiger () auf die Zeichnungsfläche. Drücken Sie die Steuerungstaste auf der Tastatur und halten Sie sie gedrückt (Unten links im Zeichnungsfenster öffnet sich das Dialogfenster “Als Gruppe stempeln”). Selektieren Sie den Zeichnungseintrag wie einen Bereich (siehe auch Benutzeroberfläche > Bedienung – Besonderheiten beim Auswählen und Selektieren). Im Beispiel möchten wir die Rechtwinkligkeitstoleranz in der Rückansicht, angegeben mit einem Toleranzindikator (Toleranzrahmen), stempeln:
1) Im Dialogfenster “Als Gruppe stempeln” wird zur Kontrolle die Anzahl der erkannten Elemente angezeigt, im Beispiel sind es zehn. Dabei handelt es sich um die Vektor- und Textelemente, aus welchem der Zeichnungseintrag aufgebaut ist.
2) Bestätigen Sie den Dialog, indem Sie auf Stempeln klicken. 2) Die als Gruppe ausgewählten Elemente wurden als ein Merkmal erkannt, als solches gestempelt und in den Prüfpaln übernommen:
en/infra-convert/user/functions/ballooning_workflow.txt · Last modified: 2017/07/26 14:25 by me