User Tools

Site Tools


en:infra-convert:user:interface:drwwindow

This is an old revision of the document!


User manual infra CONVERT > User interface > Main window

Drawing window


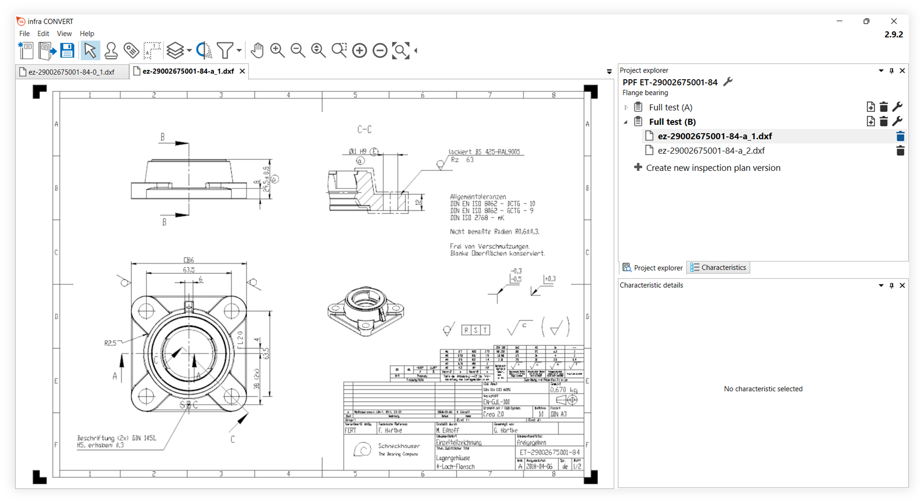
Drawings are retrieved from the Project overview and displayed in the drawing window as tabs filed in a row. Any number of drawings can be opened at the same time:


It is possible to customize the color display for drawing sheets in the CAD data format DWG, DXF or IGES (→Drawing data format). The background color can be freely selected and the elements can be displayed in color or monochrome (see Settings > "Display" group). A white background and monochrome (black) lines resemble the usual drawing display (see illustration above). A colored display, as known from some CAD systems, may look like this:


Go to previous page
User interface > Main window > Start window

Go to next page
User interface > Function window > Project overview

en/infra-convert/user/interface/drwwindow.1519406268.txt.gz · Last modified: 2018/02/23 18:17 by me